Direkt zum Seiteninhalt

Büroplanung - Marcel Baechler - Innenarchitektur, Architektur & Praxisplanung


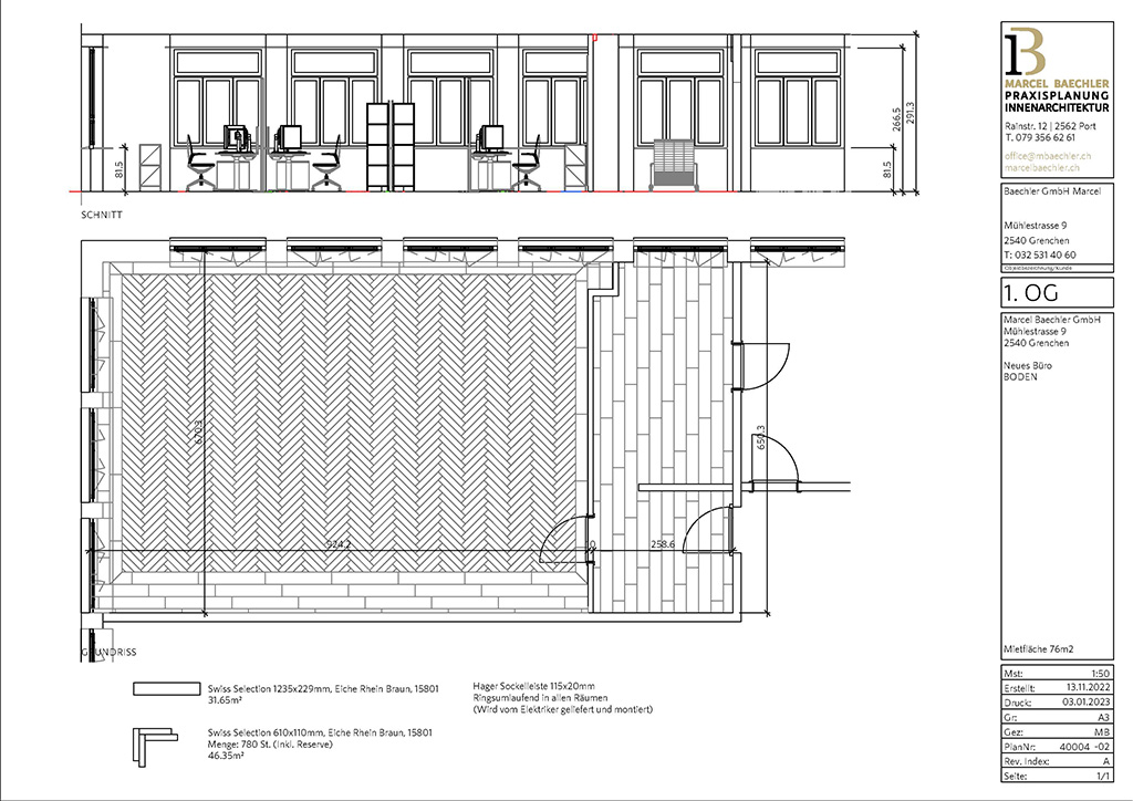
Büroplanung Grenchen 2023

Auftraggeber: Marcel Baechler GmbH
Umsetzung: im Januar 2023
Auftragsart: Direktauftrag

Innenarchitektur: Marcel Baechler, Innenarchitekt vsi.asai.
Bauleitung: Marcel Baechler, Innenarchitekt vsi.asai.

Büroplanung und Gestaltung der neuen Räumlichkeiten von Marcel Baechler GmbH. Wir freuen uns Sie nach dem Umbau im Januar 2023 an der Mühlestrasse 29 in Grenchen begrüssen zu dürfen.
Line
Zurück zum Seiteninhalt