Direkt zum Seiteninhalt

Walk-In Arztpraxis für allgemein- und innere Medizin - Marcel Baechler - Innenarchitektur, Architektur & Praxisplanung


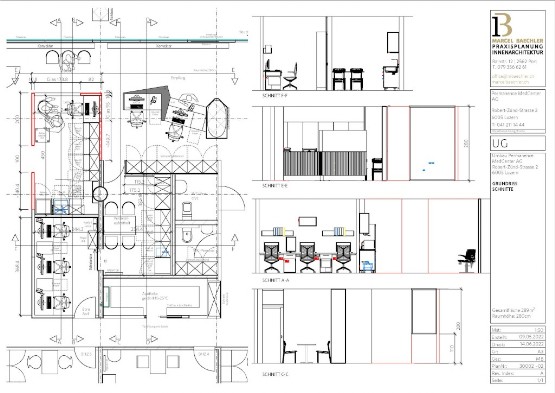
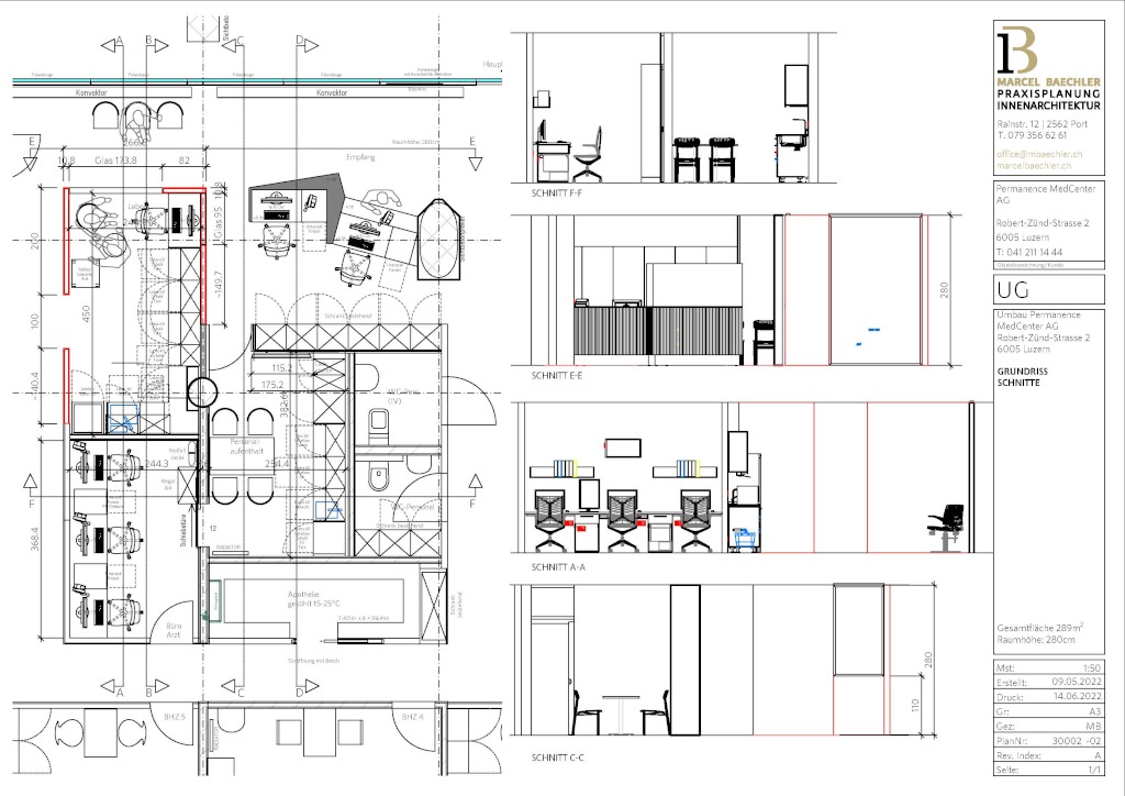
Medcenter Permanence Luzern - Walk-In Praxis

Auftraggeberin: Medcenter AG, Luzern
Realisierung: 2022
Auftragsart: Direktauftrag

Innenarchitektur: Marcel Baechler, Innenarchitekt vsi.asai.
Oberbauleitung: Marcel Baechler, Innenarchitekt vsi.asai.
Bauleitung: Marco Fehlmann, Fehlmann & Partner GmbH

Frau Matter, die Eigentümerin der Medcenter Gruppe, übertrug mir die Verantwortung für den weiteren Umbau des Medcenters. Neu kam der Umbau der 20-jährigen Permanence am Bahnhof Luzern dazu.

Die grosse Herausforderung bei der Walk-in-Praxis am Bahnhof in Luzern waren, dass diese sieben Tage in der Woche von sechs Uhr morgens bis elf Uhr abends geöffnet ist. Den Umbau konnten wir nur umsetzen, indem wir ein Provisorium vor der Praxis aufbauten und den Empfang und das Warten in dieses verlegten, um anschliessend in der Praxis ein Provisorium für das Labor im Warten aufbauen zu können.
Nach sechs Wochen Umbauzeit konnten der Betrieb mit neuem Empfang, Labor, Infusionszimmer, Arztbüro und Personalküche wieder aufgenommen werden.

Line
Line
Zurück zum Seiteninhalt