Direkt zum Seiteninhalt

Herz-Team Kardiologie, Grenchen - Marcel Baechler - Innenarchitektur, Architektur & Praxisplanung

Herz Team, Praxis für Karidiologie, Grenchen

Auftraggeber: Herz-Team Grenchen AG
Frau PD Dr. med. Nisha Arenja, Herr Dr. med. Gerrit Hellige
Realisierung: 2024
Auftragsart: Direktauftrag

Innenarchitektur: Marcel Baechler, Innenarchitekt vsi.asai.
Bauleitung: Marcel Baechler, Innenarchitekt vsi.asai.


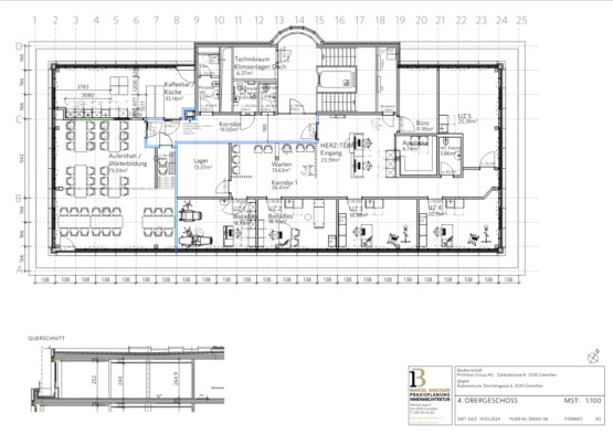
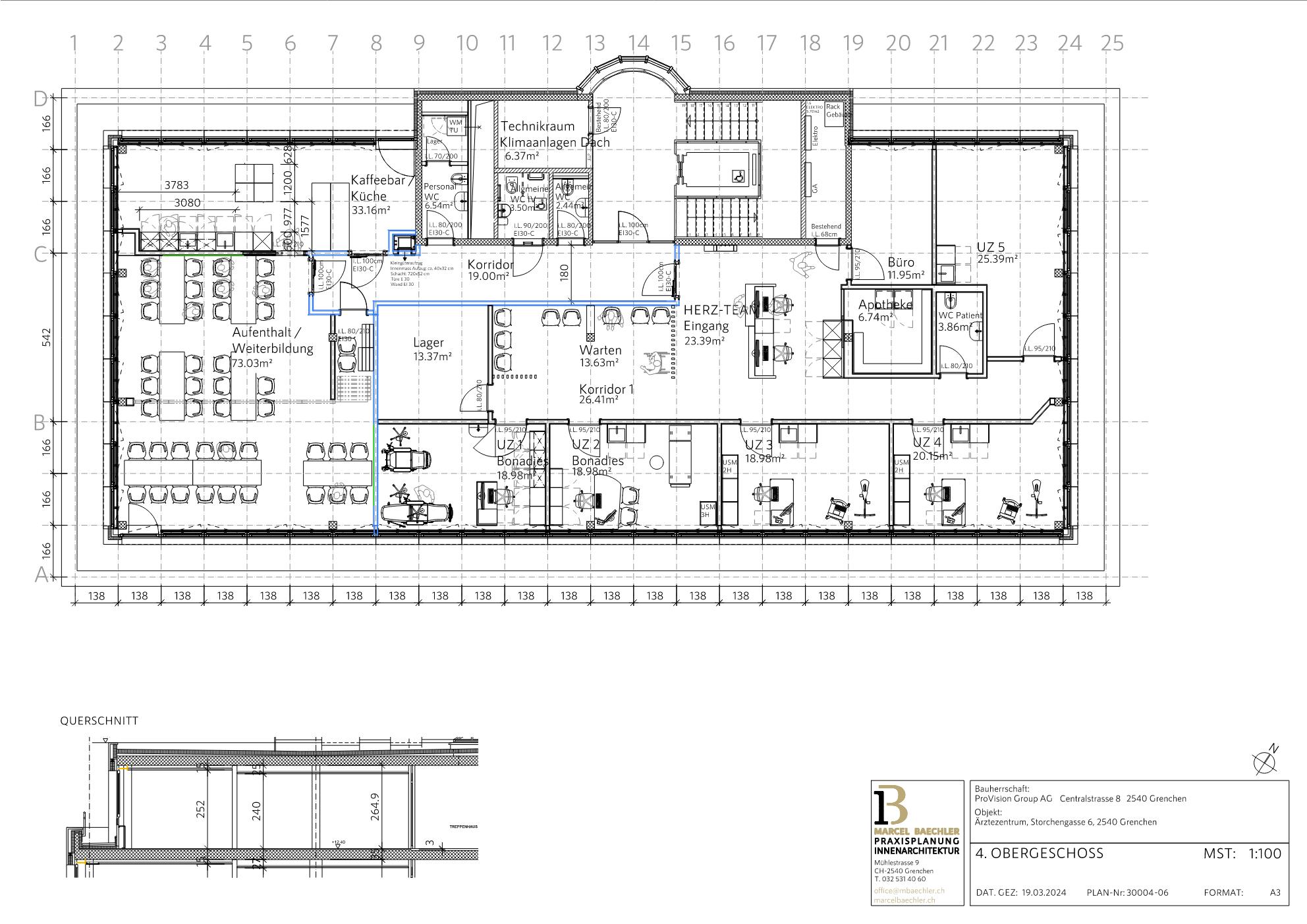
Wir erhielten den Auftrag, im 4. Obergeschoss die neue Praxis für Kardiologie zu gestalten und umzusetzen.
In diesem Projekt waren wir für die gesamte Entwurfs-, Ausführungs-, Sanitär- und Elektroplanung mit Bauleitung verantwortlich.

Nachdem der Auftrag zur Gestaltung der neuen Kardiologie-Praxis im 4. Obergeschoss erteilt wurde, begann unser Team mit der kreativen Planung. Die Ärzte hatten klare Vorstellungen: Sie wünschten sich eine moderne und zugleich ansprechende Atmosphäre, die sowohl Professionalität als auch Wärme ausstrahlt. Die Farbpalette sollte Rot und Weiss umfassen.

Wir entschieden uns, die Wände in einem sanften weiss zu streichen, um den Räumen eine helle und luftige Ausstrahlung zu verleihen. Ein kräftiges Rot wurde strategisch platziert, um Energie und Dynamik zu vermitteln – Eigenschaften, die besonders in einer Kardiologie-Praxis wichtig sind. Diese roten Elemente sollten nicht nur auffallen, sondern auch ein Gefühl von Vitalität und Lebensfreude ausstrahlen.

Um dem Raum Tiefe und Eleganz zu verleihen, wählten wir eine strukturierte Tapete von Vescom in einem schimmernden Silberton für einige Bereiche der Praxis. Diese Tapeten reflektierten das Licht auf subtile Weise und sorgten für einen modernen Touch. In den Behandlungsräumen wurden die strukturierten Tapeten hinter den medizinischen Geräten angebracht, um einen harmonischen Kontrast zu schaffen.

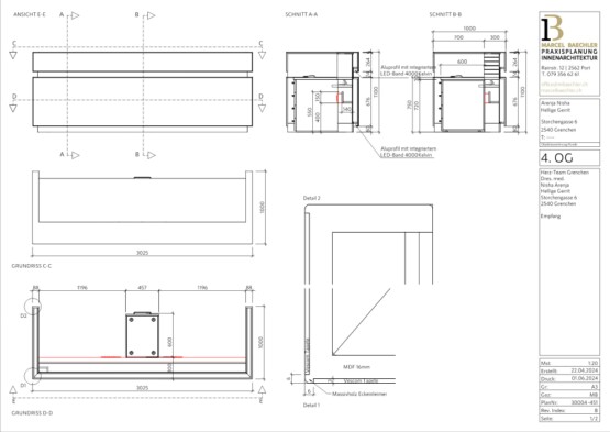
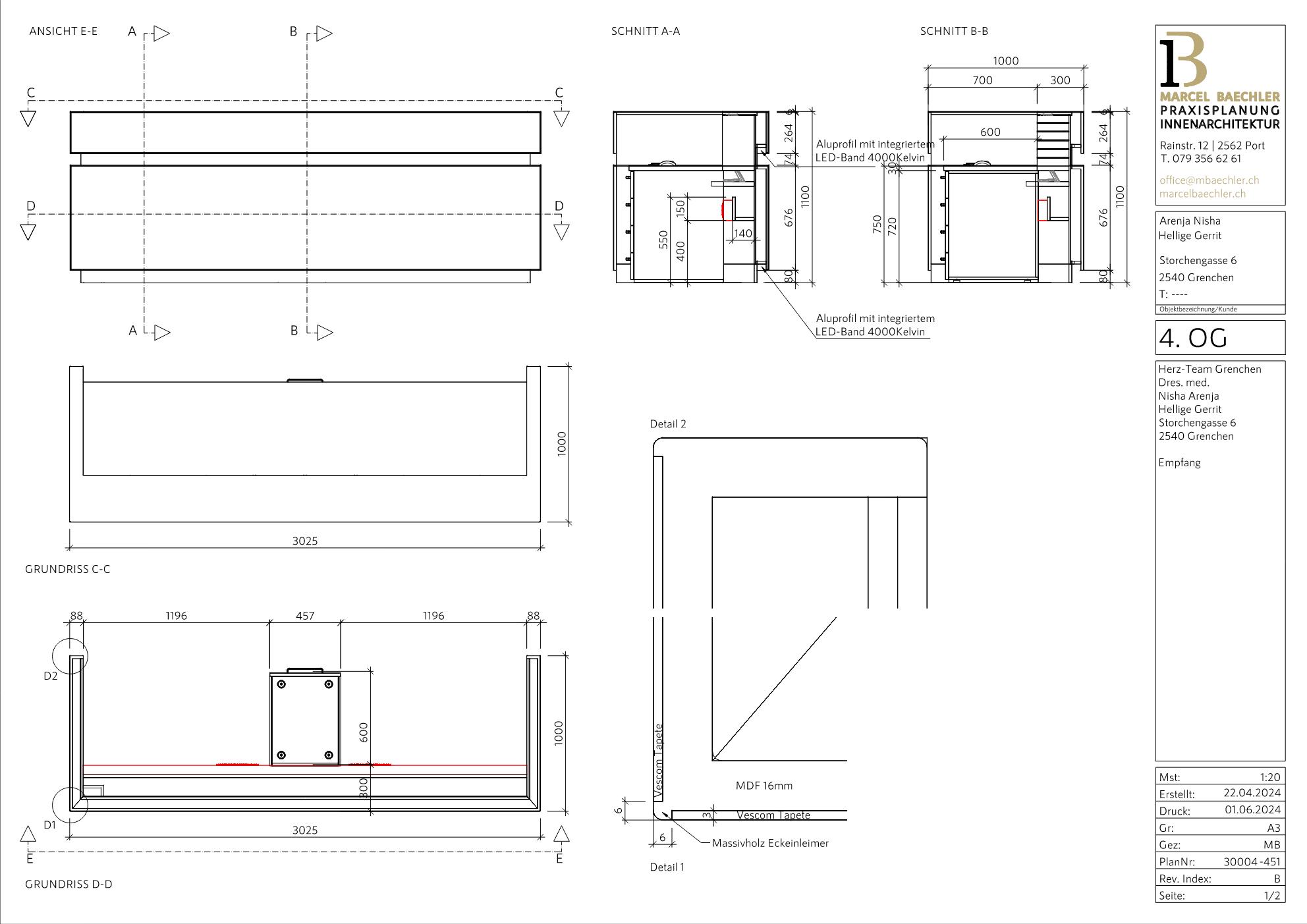
Der Empfangsbereich wurde mit einer eleganten Rezeption ausgestattet, die mit der gleichen strukturierten Tapete, wie an den Wänden gestaltet wurde. Eine Herausforderung für den Schreiner. Bequeme Sitzgelegenheiten mit Sitzkissen in Rottönen laden die Patienten zum Verweilen ein. Stilvolle Kunstwerke an der Wand – abstrakte Darstellung des Herzens – ziehen sofort die Blicke auf sich und setzen einen eindrucksvollen Akzent. Diese Bilder wurden von einem pensionierten Kollegen der beiden Kardiologen extra für die Praxis angefertigt.

Visualisierung | Realitätsfoto (Schieber nach Links und Rechts bewegen)
Line
Zurück zum Seiteninhalt