Direkt zum Seiteninhalt

Dermatologie am Gurten - Marcel Baechler - Innenarchitektur, Architektur & Praxisplanung

Dermatologie am Gurten, Wabern b. Bern

Auftraggeber: PD Dr. med. Simon Bossart
Realisierung: 2024
Auftragsart: Direktauftrag

Innenarchitektur: Marcel Baechler, Innenarchitekt vsi.asai.
Bauleitung: Marcel Baechler, Innenarchitekt vsi.asai.

Ein harmonisches Zusammenspiel von Farben und Materialien

In Wabern bei Bern hat eine neue dermatologische Praxis ihre Türen geöffnet, die nicht nur durch ihre medizinische Expertise besticht, sondern auch durch ein durchdachtes Innenarchitekturkonzept. Wir Innenarchitekten haben Räume erarbeitet, die sowohl funktional als auch ästhetisch ansprechend sind und den Patienten ein Gefühl von Ruhe und Geborgenheit vermitteln.

Die Farbpalette der Praxis ist sorgfältig ausgewählt und umfasst beruhigende Blau- und Grüntöne, die mit warmen Holzfarbtönen kombiniert werden. Diese Farbkombination fördert nicht nur eine entspannende Atmosphäre, sondern spiegelt auch die Natur wider – ein wichtiger Aspekt in der Dermatologie, wo das Wohlbefinden des Patienten im Vordergrund steht. Blau steht für Vertrauen und Professionalität, während Grün für Heilung und Erneuerung steht. Goldene Akzente setzen elegante Highlights und verleihen dem Raum eine gewisse Wärme und Exklusivität.

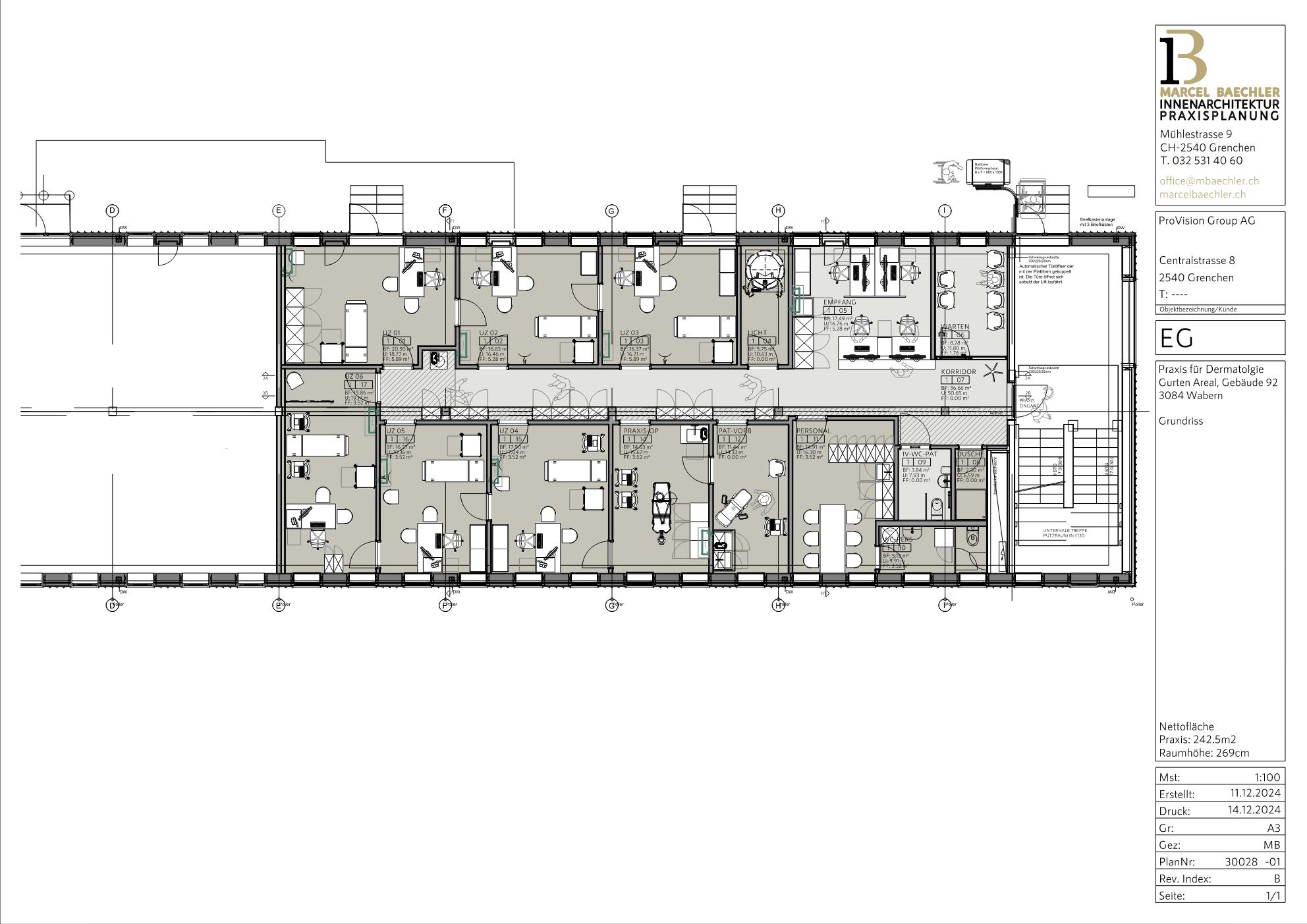
Die Raumaufteilung wurde ebenfalls mit Bedacht geplant. Die Praxis bietet verschiedene Behandlungsräume, die jeweils individuell gestaltet sind, um den unterschiedlichen Bedürfnissen der Patienten gerecht zu werden.

Zusammenfassend lässt sich sagen, dass die neue dermatologische Praxis in Wabern bei Bern ein gelungenes Beispiel für moderne Innenarchitektur ist. Durch die geschickte Kombination von Farben, Materialien und Raumgestaltung wird eine Atmosphäre geschaffen, die sowohl beruhigend als auch professionell wirkt. Hier wird deutlich: Gute Innenarchitektur kann einen entscheidenden Beitrag zum Wohlbefinden der Patienten leisten – ein Aspekt, der in der Gesundheitsbranche von grösster Bedeutung ist.


Visualisierung | Realitätsfoto (Schieber nach Links und Rechts bewegen)
Line
Zurück zum Seiteninhalt